WING LUKE ELEMENTARY
Seattle, WA
2016 - 2021
While working at NAC Architecture
Project Architect
105,567 SF
18.71 EUI
Located in Seattle’’s South Beacon Hill neighborhood, Wing Luke Elementary School draws attendance from some of the most diverse communities in the Seattle region. Designated as a Bilingual Center School, Wing
Luke is home to a richly diverse multicultural experience that celebrates a variety of languages including Somali, Vietnamese, Chinese, Spanish, Cambodian, and Cham. Themes of diversity and inclusion are at the center of the Wing Luke community and have inspired the design for the new Wing Luke School.
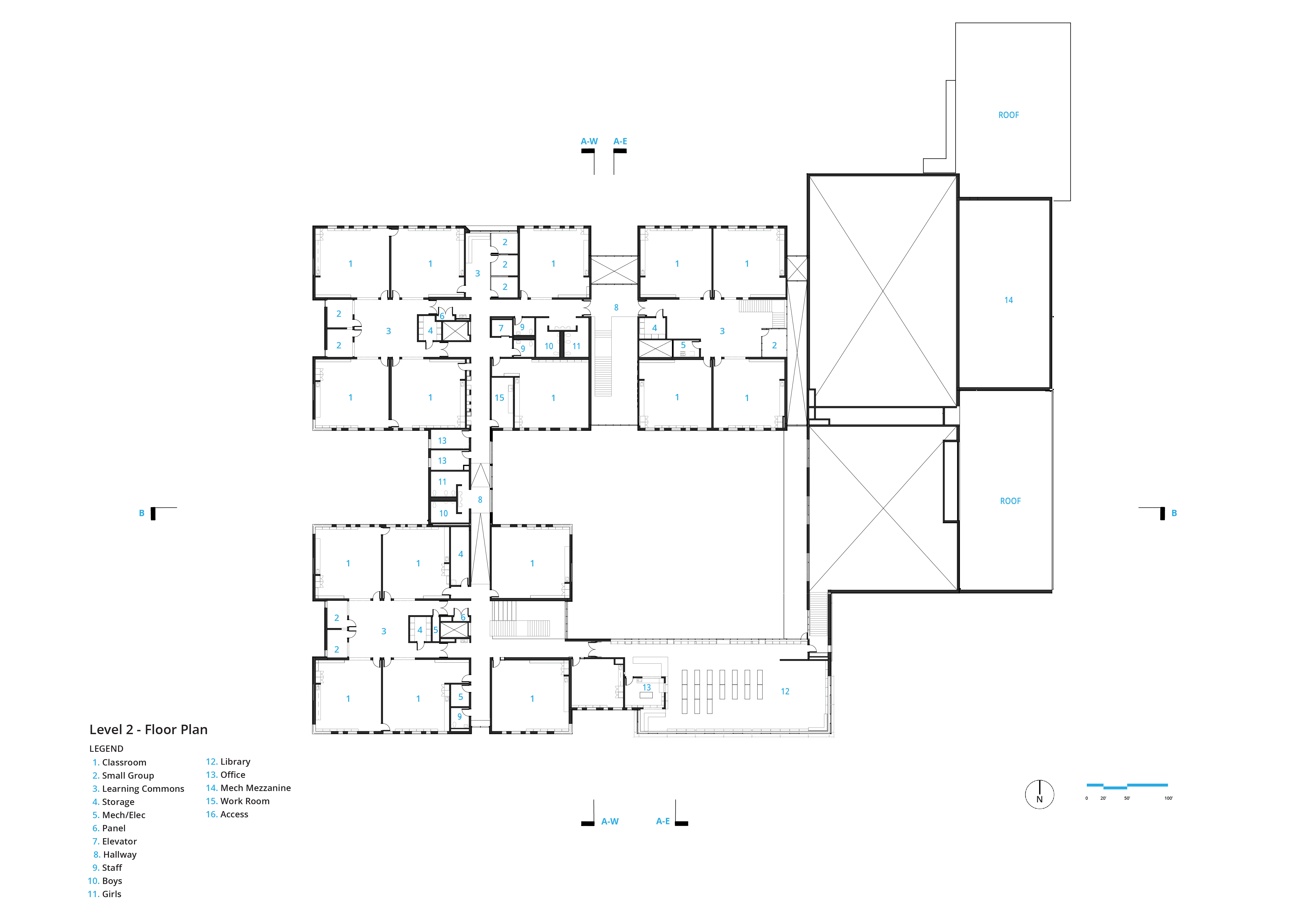
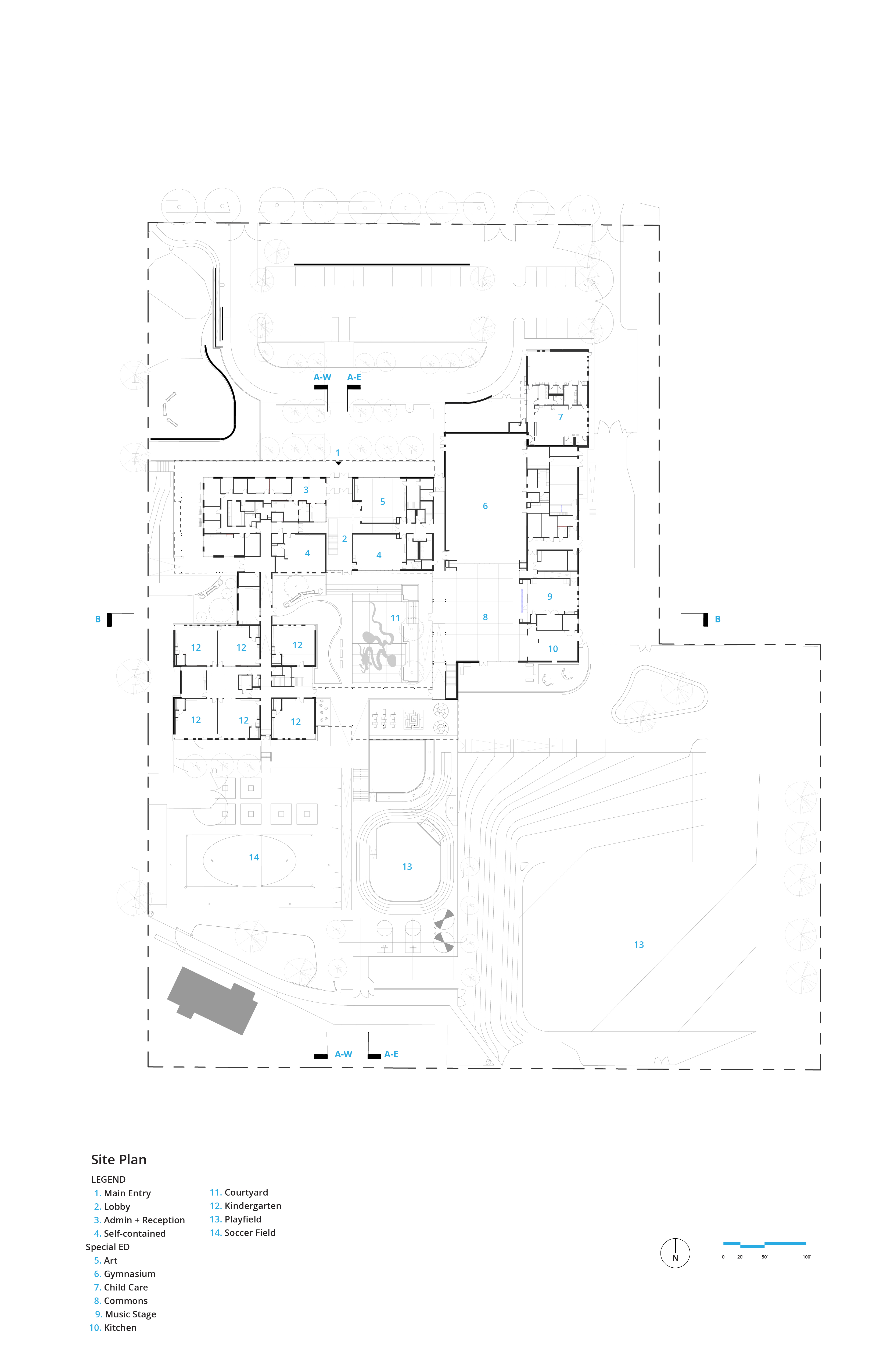
Wing Luke’s diverse student population merits an architecture that celebrates and elevates the recognition of those cultures. The school identity is best represented by the central courtyard which is designed as space to gather as a school community. A variety of programs such as the lobby, gym, and library open up to the courtyard offering constant visual and physical connection. This central space is inherently introverted, surrounded by the school, but a soaring second-floor library frames the view towards Mt. Rainier beyond and is a gateway to the play area to the south. The site drops 40 feet as one moves from the north parking to the southern play space. This offers a unique architectural language that steps with the landscape in a gracious and spatially rich manner. Early elevations illustrate explorations of academic building masses moving down the site.


ELEVATED LIBRARY
The library presents a dramatic formal move by working with the
grade change to life the space 30 ft to provide a covered playground below. This
creates a special architectural element for the school that is visible from the
surrounding lots. To allow panoramic views towards the Cascade Mountains
and Lake Washington, a 120’ ft steel frame lined with horizontal wood fins
faces south to mitigate glare and solar heat gain.

